BESKRIVNING
D54 representerar ett mycket klassiskt hus som är intressant för de som planerar att bygga sitt drömhem. Husets kompakta design gör att det passar perfekt i både stads- och förortsmiljö. Fasaden är en kombination av vit färg med detaljer i grått och träimitation.
Om du letar efter ett hem för din familj med många sovrum – är detta projekt som gjort för dig. Huset har fyra sovrum med möjlighet till att bygga en vind med ytterligare utrymme. Om du har en tomt på minst 25 x 29 m kan du överväga att skapa detta projekt till just dig. D54 har en användbar yta på nästan 150 m² och plats för familjen två bilar i det dubbla garaget.
När vi kliver in i D54 genom hallen kommer vi genast in i det rymliga vardagsrummet som har en utsikt mot terrassen på husets baksida. Huset är planerat utifrån att det ska vara möjligt att gå och lägga sig ostört samtidigt som resterande familjemedlemmar fortfarande kan umgås i vardagsrummet. Ett av husets sovrum har ett eget badrum och walk-in-closet.
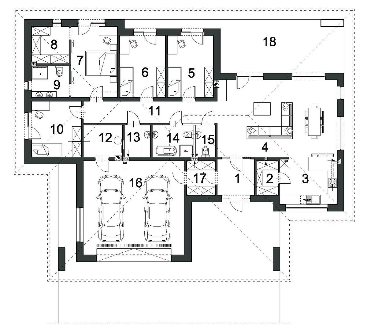
MARKPLAN
BOTTENVÅNING 147.97 m2
| 1 Förrum | 5.78 |
| 2 Skafferi | 3.26 |
| 3 Köket | 11.51 |
| 4 Vardagsrum med matplats | 39.69 |
| 5 Rum | 12.30 |
| 6 Rum | 12.30 |
| 7 Rum | 14.25 |
| 8 Walk-in-closet/Garderob | 6.10 |
| 9 Badrum | 5.15 |
| 10 Rum | 12.00 |
| 11 Korridor | 12.80 |
| 12 Teknikrum | 5.40 |
| 13 Teknikrum | 3.50 |
| 14 Badrum | 5.70 |
| 15 Badrum | 2.70 |
| 16 Garage | 41.00 |
| 17 Walk-in-closet/Garderob | 4.20 |
| Total bottenvåning | 147.97 |
| 18 Terrass | 31.46 |















