BESKRIVNING
D59 är huset i form av ett ultramodernt block som består av två nivåer av total användbar yta 200,57 m². Huset har en symbolisk och kompakt form av och är samtidigt enkelt i sin struktur, en målad fasad och tidslinjer i vit färg.
Ingången till huset ligger på framsidan där det också finns en ingång till dubbelgaraget på 42,36 m². På nedre våningen i detta hus slås man av det pampiga vardagsrummet på nästan 50 m² som är kombinerat med matsalen. Vi har använt stora fönster i vardagsrummet vilket ger mycket naturligt ljus i detta rum. Köket ligger lite avskilt vid sidan av vardagsrummet och matsalen.
På bottenvåningen finns ytterligare ett rum som kan fungera som ett gästsovrum eller kontor. Vardagsrummet har en direkt tillgång till den stora terrassen som omger hälften av huset. Vid vardagsrummets ingång finns husets trappor som leder upp till övervåningen där det finns sovplatser för hela familjen. Barnrummen ligger på en separat sida av huset och föräldrarnas sovrum på en annan sida. Det största sovrummet består av tre komponenter, sovrum badrum och walk-in-closet. På husets bottenplan finns ett badrum samt en tvättstuga.
MARKPLAN
BOTTENVÅNING 106.29 m2
| 1 Förrum | 7.55 |
| 2 Köket | 17.16 |
| 3 Vardagsrum med matplats | 48.15 |
| 4 Korridor | 4.80 |
| 5 Rum | 15.34 |
| 6 Badrum | 5.68 |
| 7 Trappa | 7.57 |
| 8 Teknikrum | 11.90 |
| 9 Garage | 42.34 |
| Total bottenvåning | 106.29 |
| 10 Terrass | 64.85 |
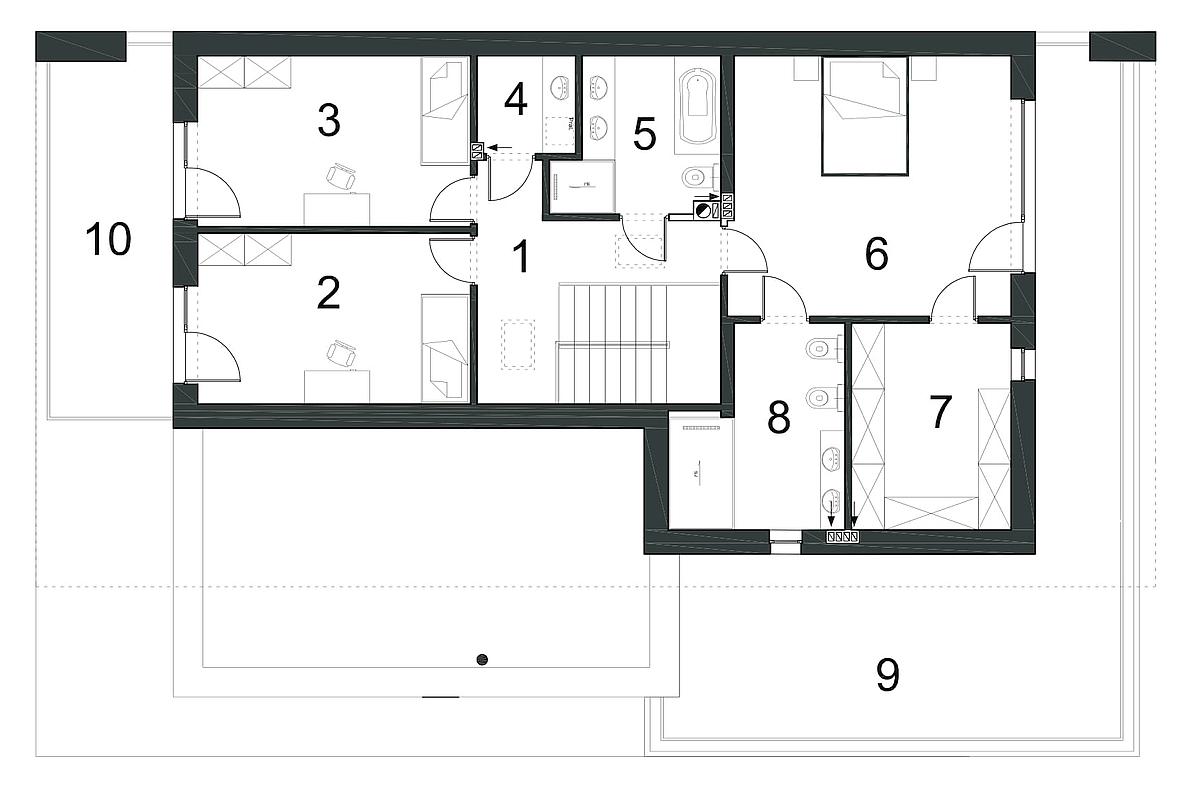
GRUND
LAGER 97.46 m2
| 1 Korridor | 9.86 |
| 2 Rum | 15.53 |
| 3 Rum | 15.55 |
| 4 Tvättstuga | 3.18 |
| 5 Badrum | 7.79 |
| 6 Rum | 24.29 |
| 7 Walk-in-closet/Garderob | 11.02 |
| 8 Badrum | 10.24 |
| Totalt antal våningar | 97.46 |
| 9 Terrass | 41.17 |
| 10 Balkong | 14.92 |
















