OPIS
D16 sodoben in intriganten – to je naš naslednji predlog, ki smo ga zasnovali. Vam je všeč oblika te hiše? Poglejte notranjost in ugotovite, kako izgleda notranjost. D16 je pritlična družinska hiša z ravno streho, garažo z dvema sedežema in dvema velikima terasama, ena, ki se razprostira vzdolž celotne hiše na vrtni strani, druga stran pa na sprednji strani, pokrita z opečnim zidom.
Zunanjost
Osnova hiše je pravokotne oblike z eno stranjo daljšo od druge (približno 14 x 25,5 m), zaradi česar je zelo zanimiva. Telo objekta skupaj z originalno okvirno konstrukcijo na sprednji strani in kovinsko pergolo na vrtni strani predstavlja poenostavljen modernističen videz. Glavne značilnosti so minimalizem in eleganca.
Notranjost hiše:
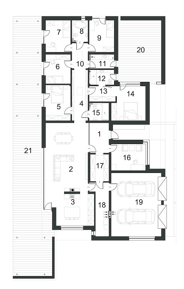
Hiša je jasno razdeljena na tri osnovne dele: nočni, dnevni in tehnični. Vhod v hišo, ki se nahaja v vdolbini objekta, vodi v predprostor, v katerem je na desni strani mogoče oblikovati na primer vgradno omaro. Pri vhodu, spredaj, je prostor, ki se lahko uporablja kot garsonjera ali dodatna spalnica. Iz predprostora skozi garderobo in tehnični prostor vodi prehod v garažo z dvema parkirnima mestoma. Vendar pa iz tehnične sobe vhod vodi v dnevno sobo hiše. Značilnost dnevne sobe je steklena stena dnevne sobe s pogledom na vrt. Poleg tega smo v dnevni sobi zasnovali kamin in izhod na teraso. Kuhinja je od dnevne sobe delno ločena s steno s kaminom. Dimenzije kuhinje so nam omogočile oblikovanje »otoka«, ki je lahko delovna površina ali miza.
Na nasprotni strani dnevne sobe je prehod v nočni del hiše. Dolg hodnik, ki vodi v posamezne prostore, je tudi knjižnica, na obeh straneh smo oblikovali police za knjige, družinske fotografije ali potovalne spominke. Spalni del je sestavljen iz petih spalnic. Glavna spalnica ima svojo garderobo in kopalnico. V nočnem delu smo zasnovali dve dodatni kopalnici in pralnico z izhodom na tlakovan del dvorišča Število sob in kopalnic je predvideno za veliko šestčlansko družino, vsekakor pa obstaja možnost prenove, prilagojene za tri ali štiri sobe. D16 je zelo moderna in funkcionalna hiša, ki bo navdušila ljudi, ki cenijo udobje, prostornost, minimalizem, pa tudi stik z naravo in praktične rešitve. Pišite nam, če želite oblikovati dom svojih sanj po navdihu projekta D16.
TRS PRITLIČJA
PRITLIČJE 232.20 m2
| 1 predsoba | 7.47 |
| 2 dnevna soba z jedilnico | 41.85 |
| 3 kuhinja | 14.57 |
| 4 knjižnica | 10.82 |
| 5 soba | 11.73 |
| 6 soba | 9.67 |
| 7 soba | 10.54 |
| 8 kopalnica | 4.55 |
| 9 soba | 10.54 |
| 10 koridor | 5.41 |
| 11 perilo | 4.55 |
| 12 kopalnica | 4.99 |
| 13 garderoba | 5.47 |
| 14 spalnica | 14.56 |
| 15 kopalnica | 4.57 |
| 16 pisarna | 12.11 |
| 17 garderoba | 6.69 |
| 18 tehnično sobo | 10.30 |
| 19 garaža | 41.81 |
| Skupno pritličje | 232.20 |
| 20 terasa | 35.01 |
| 21 terasa | 106.69 |
POGLED NA FASADE
POLOŽAJ NA TERENU
–















