BESKRIVNING
D23-husets design är en enkel och elegant konstruktion av en byggnad på första våningen. Om du gillar modern enkelhet kan denna design tjäna som grund för utformningen av ditt framtida hem. Funktionella lösningar för interiören kombineras med byggnadens minimalistiska form. De viktigaste fördelarna med D23-projektet är: 1. Den genererade värmen behålls alltid där hushållet äger rum (dvs. lägre driftskostnader). Ytterligare plus av en sådan lösning är den lägre kostnaden. 2. Optimal användning av de användbara funktionella zonerna 3. Öppet vardagsrum, tack vare vilket huset blir rymligt. Det är också en idealisk plats att umgås tillsammans. 4. Badrummet och en separat toalett med handfat ger mer hushållsfrihet. På kundens begäran kan duschen utformas i ett separat rum för att ytterligare förbättra husets logistik. 5. Fyra rum i nattzonen, som kan omvandlas till sovrum eller t.ex. för studier kan en gäst eller ett hobbyrum omvandlas för att driva sina egna intressen (gym, bibliotek, etc.). 6. Två oberoende terrasser med utgång från köket (plats för morgonkaffe) och vardagsrum (utrymme att spendera hela sommaren). 7. Utmärkt belysning av huset med naturligt ljus tack vare de höga fönstren i varje rum, kök och vardagsrum. Detta projekt har förmågan att ändra det funktionella utseendet – att anpassa sig till framtida användares specifika behov, att ändra dimensionerna på enskilda rum, deras korrelation eller syfte. D23 är ett exempel på ett projekt som vi gärna kan anpassa till dina förväntningar, baserat på dina riktlinjer kommer vi att omforma det. Vi inbjuder dig att kontakta oss.
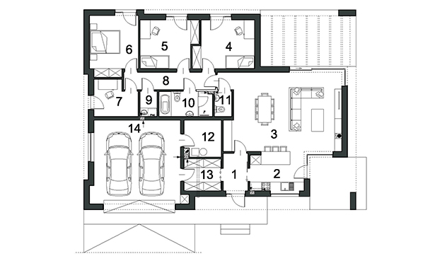
MARKPLAN
BOTTENVÅNING 127.96 m2
| 1 Förrum | 4.38 |
| 2 Köket | 9.91 |
| 3 Vardagsrum med matplats | 43.55 |
| 4 Rum | 13.34 |
| 5 Rum | 12.65 |
| 6 Rum | 13.45 |
| 7 Angränsande rum | 6.92 |
| 8 Korridor | 7.58 |
| 9 Tvättstuga | 2.05 |
| 10 Badrum | 6.38 |
| 11 Badrum | 2.08 |
| 12 Teknikrum | 6.33 |
| 13 Walk-in-closet/Garderob | 5.67 |
| 14 Garage | 35.1 |
| Total bottenvåning | 127.96 |















