D24

BESKRIVNING

Det eleganta D24-huset är utformat för en större tomt med entré på fasadens längre sida, men att ändra ingångspositionen på den kortare sidan är inte ett problem, det handlar bara om att omforma garageporten. Interiören i huset: Låt oss börja med det funktionella utseendet på bottenvåningen, som skiljer sig från de andra stora öppna ytorna. En sådan lösning är till nytta för familjelivet, särskilt när det finns små barn hemma och de måste bevakas. Ett vardagsrum med öppen spis kombinerat med matplats och ett delvis öppet kök ger flexibilitet när det gäller dekoration. Öbord med stolar, som ligger i köket, är en extra plats att äta. Dessutom designade vi skafferiet på bottenvåningen, ett stort tekniskt rum och ett litet sanitetsområde med ingången från lobbyn. Garaget med två platser har ett höjdrum och två ingångar till klippbordet och lobbyn. Hela sittgruppen på bottenvåningen är perfekt upplyst tack vare glasrutan. Vi har alltid användbara skåp i foajén. Det finns fyra stora, bekväma sovrum på övervåningen. Det ena, det så kallade sovrummet, har en egen garderob och ett badrum som ger maximal integritet. Vad vi särskilt gillar med denna design är det stora hörnfönstret i detta sovrum. Det finns ett andra badrum och tvättstuga på första våningen, och en lång hall leder till den övre delvis täckta terrassen vilket är viktigt – det är direkt tillgängligt för alla i hushållet. Som vi nämnde vi – en kompakt, men ovanligt snygg och elegant design. Vi kombinerade de kalla färgerna – vitt och grått – med träets värme. Dessutom kännetecknas D24 av en omisskännlig stil som kombinerar moderna platta tak till glas och skuggning. Om du är intresserad av detta projekt, vänligen kontakta oss, vi svarar på alla frågor om dess funktionalitet, yttre utseende och eventuella förändringar som gör att vi bättre kan anpassa det till dina behov.

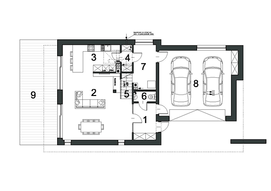
MARKPLAN

BOTTENVÅNING 103.38m2
1 Förrum 6.43
2 Vardagsrum med matplats 33.3
3 Köket 11.77
4 Skafferi 2.21
5 Trappa 2.35
6 Badrum 1.78
7 Teknikrum 7.62
8 Garage 37.92
9 Terrass 30.49
Total bottenvåning 103.38

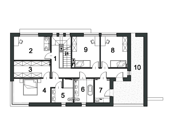
GRUND

LAGER 101.69 m2
1 Korridor 14.31
2 Rum 14.16
3 Walk-in-closet/Garderob 9.89
4 Rum 16.11
5 Badrum 6.67
6 Badrum 7.58
7 Tvättstuga 5.97
8 Rum 13.54
9 Rum 13.46
10 Terrass 20.6
Totalt antal våningar 101.69

UTSIKT PÅ FASADEN

FÄLTPOSITION

D23
D25
Meny