D46

OPIS

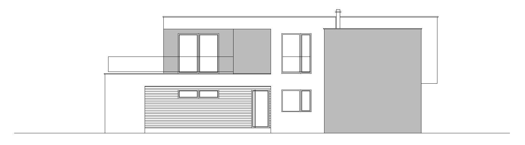
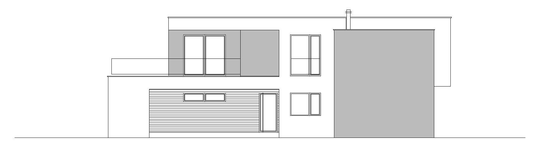
Predstavljamo naš naslednji dizajn, hišo D46. Oblika te hiše predstavlja slog moderne gradnje. Zaznamujejo ga ravna streha in moderne fasadne barve. Če je vaša zazidljiva parcela precej ozka, a želite, da vaša hiša izstopa z zanimivo moderno podobo – vas vabimo, da se seznanite z našim novim projektom D46. Zemljišče, potrebno za gradnjo te hiše, mora biti široko vsaj 15 metrov. D46 je tipična družinska hiša. Sestavljen je iz 5 sob skupaj z dnevno sobo. V pritličju je dnevna soba s kuhinjo, kopalnica in dodatna soba, ki lahko služi kot delovna ali spalnica. Na voljo je tudi dvojna garaža ter vsi potrebni tehnični in pomožni prostori. Prvo nadstropje je kot običajno spalni del hiše. Na voljo so tri spalnice, ena od njih pa ima tudi garderobo. Poleg tega je kopalnica in ločeno stranišče. Iz ene spalnice se lahko poda direktno na skoraj 30 m2 veliko teraso.

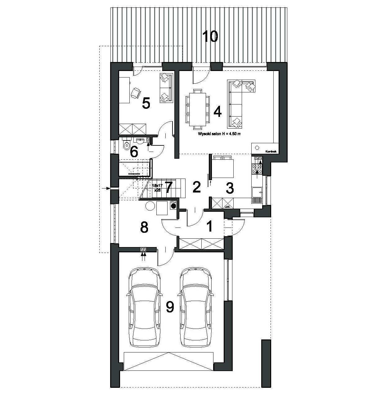
TRS PRITLIČJA

PRITLIČJE 107.18 m2
1 predsoba 5.16
2 koridor 7.65
3 kuhinja  8.21
4 dnevna soba z jedilnico 24.89
5 soba 10.74
6 kopalnica 3.65
7 stopnice 2.73
8 tehnično sobo 9.25
9 garaža 34.90
Skupno pritličje 107.18
10 terasa 28.92

TLORST KAT

NADSTROPJE73.37 m2
1 koridor 10.99
2 soba 14.56
3 perilo 3.47
4 soba 14.55
5 garderoba 3.32
6 kopalnica 5.85
7 spalnica 12.95
8 garderoba 7.68
Skupno nadstropje 73.37
9 terasa 29.83

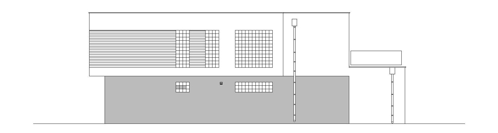
POGLED NA FASADE

POLOŽAJ NA TERENU

D47
D45
Meni