BESCHREIBUNG
Dies ist ein kleines Volumenprojekt, das die Wartungskosten niedrig hält und auch modern ist. Das moderne Design des Hauses D47 ist die Antwort für Investoren, die eine alternative Wohnung suchen und ein Haus zu einem ähnlichen Preis wollen. Die Fläche des Hauses ist nur 67 m², was der Oberfläche der durchschnittlichen Wohnung entspricht. Ein kleiner Bereich des Erdgeschosses verhinderte nicht, dass alle notwendigen Räume im Haus gefunden wurden. Wir werden hier sogar einen Platz für die Speisekammer finden. Im ersten Stock, über 40 m², gibt es drei Schlafzimmer mit einem Badezimmer, was allgemein Platz in einer komfortablen Wohnung, für eine fünfköpfige Familie bietet.
Die D47 Fassade ist eine Kombination aus modernem Grau und Weiß, verfeinert mit der Zugabe von Stein. Ein interessantes Element ist die Überdachung der Terrasse rund um das ganze Haus.
ERDGESCHOSSPLAN
ERDGESCHOSS 67.09 m2
| 1 Vorraum | 3.28 |
| 2 Korridor | 7.38 |
| 3 Wohnzimmer mit Essbereich | 27.44 |
| 4 Küche | 7.72 |
| 5 Speisekammer | 2.32 |
| 6 Badezimmer | 3.05 |
| 7 Zimmer | 9.74 |
| 8 Treppe | 1.51 |
| 9 Umkleideraum | 4.65 |
| 10 Garage | 20.36 |
| Insgesamt Erdgeschoss | 67.09 |
| 11 Terrasse | 26.71 |
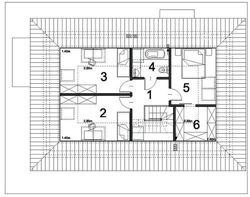
GRUNDRISS STOCKWERK
STOCK 43.56 m2
| 1 Korridor | 5.58 |
| 2 Zimmer | 10.90 |
| 3 Zimmer | 10.90 |
| 4 Badezimmer | 3.53 |
| 5 Zimmer | 8.47 |
| 6 Umkleideraum | 4.19 |
| Insgesamt Stockwerke | 43.56 |
















