KOS VIII

OPIS

Kos VIII ima jednostavan oblik, ali izuzetno privlačan dizajn kuće, u kojem je svaki detalj fasade pomno osmišljen. Velike staklene površine puštaju dovoljnu količinu prirodne svjetlosti u sobe, ali i otvaraju unutrašnjost prema vrtnoj zoni. Unutrašnjost kuće čini veliki predprostor koji je komunikacijska zona između stambenog dijela, kotlovnice i dvostruke garaže. Kuhinja je otvorena prema dnevnom boravaku i ima pristup maloj, ali vrlo korisnoj smočnici. Dnevna soba najučinkovitije je mjesto u domu, otvoreni koncept u kombinaciji s velikim ostakljenjem optički uvećava prostor. Kutni kamin i spiralno stubište do potkrovlja također stvaraju jedinstvenu atmosferu, što rezultira originalnim interijerom pogodnim za odmor. Položaj dnevnog boravka u prednjem dijelu zgrade čini ovu kuću zanimljivim prijedlogom za parcele sa ulazom s juga i zapada. U stražnjem dijelu kuće osmišljen je prostor za spavanje koji se sastoji od tri sobe i dvije kupaonice. Prednost je natkrivena terasa koja je produžetak dnevnog boravka, pa će se u toplijim danima obiteljski život vrtiti oko ovog intimnog mjesta.

TLOCRT PRIZEMLJA

PRIZEMLJE 198,35 m2
1 predsoblje 9,75
2 hodnik 10,70
3 kuhinja 9,10
4 ostava 0,70
5 dnevna soba s blagovaonicom 30,80
6 soba s garderobom 15,90
7 kupaonica 7,55
8 soba 11,10
9 soba 11,70
10 kupaonica 3,50
11 kotlovnica 6,30
Ukupno prizemlje neto 198,35
Ukupno prizemlje bruto 257,85
12 garaža 43,95

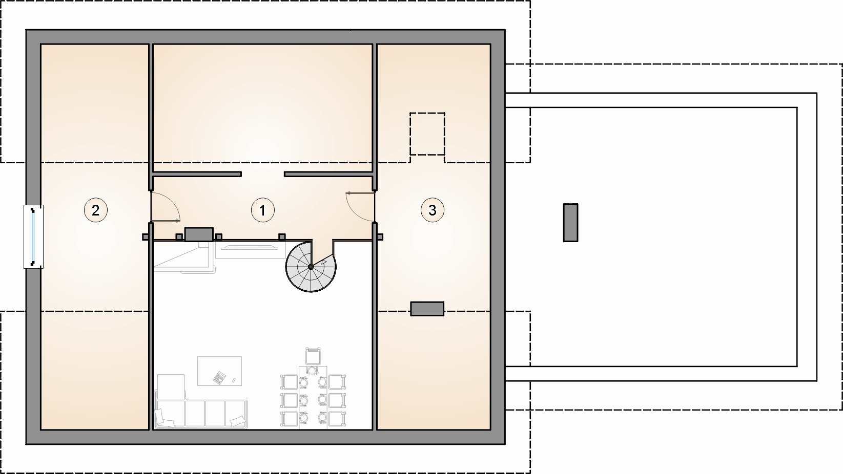
TLOCRT POTKROVLJA

POTKROVLJE 37.30 m2
1 potkrovlje i mezar 12,70
2 potkrovlje 12,10
3 potkrovlje 12,50
Ukupno potkrovlje 37,30

POGLEDI FASADA

POZICIJA NA TERENU

ROMANO
SFINKS VI
Izbornik